お知らせ
Notice
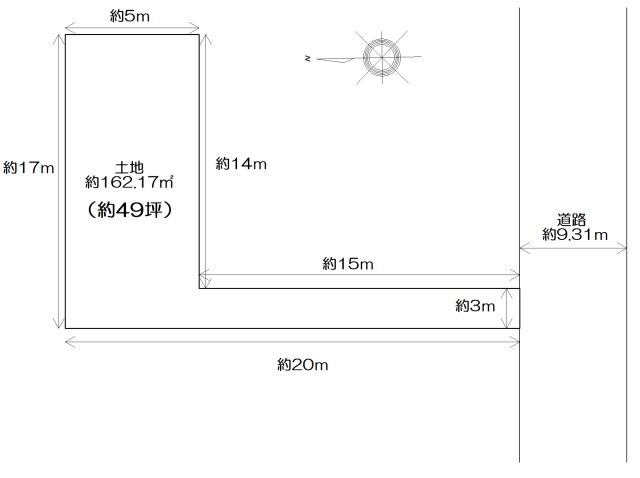
-
【お知らせ】定休日変更のお知らせ
いつも弊社ホームページをご利用いただき、誠にありがとうございます。 誠に勝手ながら、諸事情によりしばらくの間、火曜日と水曜日を 定休日とさせ…
おすすめ物件
Recommended
自社管理物件
Company-managed properties
売買物件
Buying and Selling
会員ログイン
Member
アパマンショップ阪急園田店では、会員登録をしていただいた方に非公開物件をご紹介しています。
登録は無料です!ぜひご登録ください。
【会員ログイン】
お役立ち情報
Useful information
園田は阪急梅田駅や阪急西宮北口駅へそれぞれ約9分とアクセス抜群な街です!
園田での生活に役立つ情報を集めました。































